adaptacja pomieszczeń na salon kosmetyczny

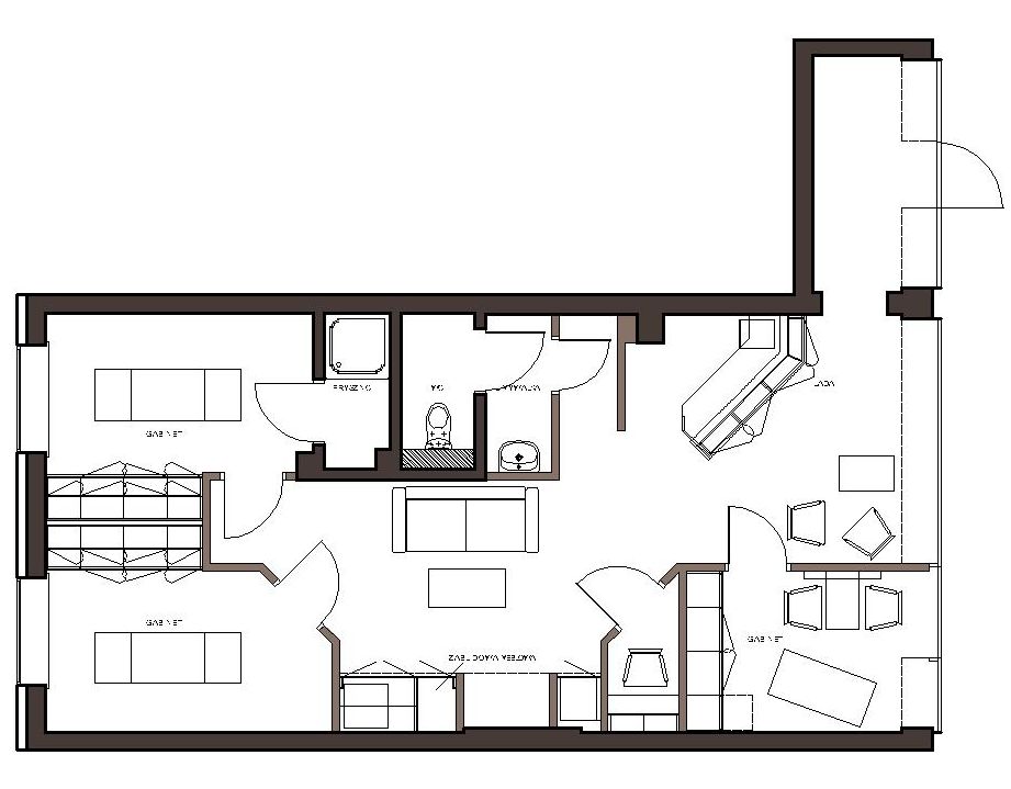
Zastany lokal o powierzchni ok.70mkw potrzebował wielu modyfikacji.
Po umiejetnym rozmieszczeniu ścian powstał nowy hol z recepcją , 3 gabinety w tym jeden z prysznicem.
Jasna biało-beżowa kolorystyka ze złotymi dodatkami tworzą ciepłe, spujne wnętrze sprzyjające relaksowi.